巧寓室內設計作品 | 義式輕奢風|歸於自然體現藝術之美|三重室內設計 - 巧寓舍計|五成尾款

create預約室內設計 chat_bubble線上客服
1WEBP.webp

義式輕奢風|歸於自然體現藝術之美|三重室內設計


奢華風

新屋裝修

4房2廳

系統傢俱、LED鋁槽燈、大板磚、薄板磚(電視牆面)、乳膠漆、灰鏡、格柵、木地板

幽微的黃光、游弋的陰翳,氤氳出放鬆寫意的氛圍,使每個景序漫射出別樣的人文質感,無形間牽引人的視線和情緒穿行其間。以義式輕奢風格演繹的雅宅,拂去冗餘的綴飾,保留材質的自然性和純粹性,並遵循「分散佈燈、虛實有度」的照明構思,任由功能指引意境,淬鍊出入住精品飯店般的精緻體驗和渡假感,引領居者一家在舒適無憂的環境中尋覓內心的寧靜。

精選 為你推薦 本月精選

本案新成屋裝潢幽微的黃光、游弋的陰翳,氤氳出放鬆寫意的氛圍,使每個景序漫射出別樣的人文質感,無形間牽引人的視線和情緒穿行其間。以義式輕奢風格演繹的雅宅,拂去冗餘的綴飾,保留材質的自然性和純粹性,並遵循「分散佈燈、虛實有度」的照明構思,任由功能指引意境,淬鍊出入住精品飯店般的精緻體驗和渡假感,引領居者一家在舒適無憂的環境中尋覓內心的寧靜。

三重裝潢案例設計概念:

大地詩人約翰・繆爾(John Muir)於《The Yosemite》一書提及:「每個人都需要玩耍和放鬆休憩的棲地,在那裡身體和靈魂可以得到大自然的療癒和力量。」萬物同源、互探共生,葉松芳設計師從藝術化的審美角度,締結自然與生活的本質,把家變成療癒身心的原點,同時在材質與空間的對應關係之間,潛藏了對時空的思考,於心於境,塑造出更多場景的歸屬感,讓日常的美好觸手可及。

三重裝潢玄關設計作品:

幽闇低婉的光影,在長廊式的玄關裡嬈嬈綽綽,映照著思緒的流動,循序漸進的行經過程,皆是深具儀式性的心境鋪陳。黑底白紋的大板地磚,表面動態感的流紋,使義式輕奢的氣韵在優雅的氛圍中收放自如,同時與溫潤的木地板立下清晰的內外分野。

延伸閱讀:玄關設計懶人包|6種玄關裝潢類型 × 玄關收納技巧全解析!

由於吊隱式冷氣的裝設,天花以降板設計自成框景,當視線透過由抑轉揚、由暗向明的變化,逐步展開更為寬廣的視野,在這段小徑中不只感受到情境的遞嬗,亦為「家」的到來埋下細膩且深刻的伏筆。

汲取木質獨有的溫度與紋脈,設計師將玄關鞋櫃、汙衣櫃、儲物櫃及神龕串織於一片木色之中,並順勢封起神龕背牆的對外窗。空間從堪輿美學的角度出發,利用簡潔一致的語言、暈黃沉穩的燈影,巧妙弱化形體的存在,實現了審美上的深度融合。

尺寸按照特定規範訂製的神龕,形式卻不囿限於傳統的桎梏,設計師以嵌入式的手法,完成功能之間的銜接,並將禮佛莊嚴的氛圍和柔情的詩意,一同化境。因著祭祀需求,神桌下方則設有兩式抽拉盤,作為擺放供品及燃香之用。

對牆一抹灰韻,如嵐霧般柔軟,亦如岩面般堅毅,挈帶著中性內斂的氣息綿延入室。突兀的電箱藏匿於門片之後,灰鏡的映亮感也豐富了家景的層次。

三重客廳室內設計:

借鑑如樹葉脈絡、昆蟲班紋、水波漣漪等自然界現象,那些重複元素有規律性的排佈,成就出一種有序的韻律美,設計師將其應用在空間之中,以木質的肌理、石紋的美感、鏡面的潤澤貫穿始終,創造出多元並陳又富含節奏的獨特美感。

由多種材質拼接而成的電視主牆,沿著橫軸攤展,體現出開闊大氣的視覺感受,再加上個性石紋、木格柵、玻璃、清水模質感的遞嬗,成功在簡約的線性構圖中澆注奢華的韻味。陳列著精瓷和酒藏的玻璃櫃,採用深色木紋底襯,以及經精確角度計算的側光,藉此襯托出藝品的姿態和高級感,使屋主獨到的美學感知,又朝藝術境界開拓了另一種維度。

延伸閱讀:沙發背牆設計小秘訣,網美級背景牆設計提案!

借助天花的起伏,景深再一次帶來張弛的變化,沙發背牆延續玄關的中性灰,為區域間的轉換達到統一的平衡。局部木格柵的點綴,與電視牆呈對角拉伸,相互呼應,打破橫平豎直的表述方式,形成一種更具方向性及延伸感的空間敘事。

承接電視主牆的轉折,拓展出一整排的窗邊臥榻,與柔和的日光、恣意搖擺的樹影、若隱若現的城市輪廓,共織一幅迷人的綺麗光景,這方這自在無壓的角落,既能當作正式的會客廳,亦能化為品茗、閱讀的休憩之地,給予空間多維的自由,完美詮釋當代「精緻生活」的態度。

三重裝潢餐廚設計案例:

開放式餐廚區保留原有的既定形式,重新更換櫃門,並導入石紋、木質元素,以優雅精美的的嶄新面貌,將一家人溫馨的餐敘時光、動人的生活細節,不著痕跡地彌散其間。此外,餐桌一側特別改為長凳座椅,為通往書房的行走動線騰出餘裕。

延伸閱讀:廚房中島如何做?中島設計尺寸+材質+收納超順手

三重室內設計書房案例:

根植於男主人靜心閱讀、籌謀思考的精神需求,以及女主人縫紉手作的雅好,設計師從餐廚空間隔出獨立書房,而後再以圓潤的弧角和鐵件玻璃門,為生活場景賦予高格調的審美。

延伸閱讀:書房設計|書房裝潢規劃閱讀空間,細節重點一次看!

內部利用黑色、灰色、木色建構出富含文化性的空間底色,輔以能有效吸收和隔離噪音的隔音材料,使書房沉澱下來歸於靜篤,不受外界干擾。沿牆而設的L型書桌滿足了夫妻倆各自的機能需求,邊角一隅縱向延伸的格櫃,連袂吊櫃錯落穿插著門片,消弭了純收納的單調感,輾轉編織出充滿幾何意趣的圖景。

三重裝潢主臥設計:

夜幕輕啟、溫瀾潮生,主臥大膽以濃重靜穆的墨色書寫空間篇幅,而精煉的線條語彙作為一種藝術形式,讓光影的靈動、材質的精髓和意境的凝練,共同合奏出獨屬於兩人的浪漫小調。從連排衣櫃延伸而出的轉向展示櫃,以雅致的端景抵銷入門視線的阻滯感,同時導引身心切換至另一重更沉靜、更放鬆的天地。

延伸閱讀:裝修全攻略|室內裝修流程與注意事項,需要室內裝修許可嗎?

而床尾收納機能伴隨著材質的鋪敘,為空間平添獨特的節奏感和美學張力。尾段刻意選用磨砂玻璃替代清玻,維持乾淨俐落的畫面,避免睡眠時視覺及思緒的紊亂。

突破慣常溫雅柔和的風格選擇,設計師過濾掉多餘的色彩和形式,在簡淡的黑色境域裡,讓一切元素都靜止下來,徒留靜謐安穩的休憩氣氛。此外,床頭梳妝區利用活動式鏡門隱藏採光窗、衛浴增設木質實門界分場域,在門片開闔之間,創造出晝夜光景各異的時序之美。

三重裝潢男孩房設計:

從公領域到男孩房,始終保持著沉浸式的渡假之悅,簡約的視覺吟詠愜意的每個當下;門板擇以深刻自由的流紋,讓空間不再冰冷單調,取而代之的是隨心所欲的流淌。當陽光與灰色底紋交相呼應著,為此重塑了空間的輕盈質感,巧妙地將疲勞洗刷。

延伸閱讀:沙長虹玻璃 vs 小冰柱玻璃|玻璃拉門怎麼選不後悔?

女孩房設計:

夢幻甜美的粉色系,是荳蔻少女對個人世界浪漫的想像,女孩房特別選用清冷的紫藤色,與沉靜柔和的灰色底蘊,兩兩交織,渲染出淡雅溫甜,又不乏知性氣質的感受。呈長形的空間,以幾何式的組合,將書桌、床頭櫃、衣櫃整合一氣,並藉由高低起伏的韻律化解壓迫,帶來舒心清寧的睡眠氣氛。

三重裝潢衛浴設計:

依托於飯店式的衛浴規格、簡潔高雅的質感,主臥衛浴和客浴於是根據屋主日常的實際需求,運用寬窄不同的鏡櫃,讓收納的便捷與視覺的美感細緻入微、同步昇華。

三重室內設計案例

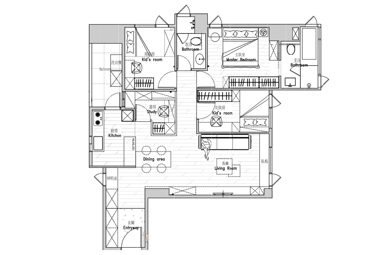
案件位於新北市三重區,4房2廳27坪格局

三重裝潢作品/建案名稱:鄉林恆美/坪數:27坪/格局:4房2廳