巧寓室內設計作品 | 簡雅舒心家邸|收錄生活中的雋美敘事|林口室內設計 - 巧寓舍計|五成尾款

create預約室內設計 chat_bubble線上客服
0WEBP.webp

簡雅舒心家邸|收錄生活中的雋美敘事|林口室內設計


北歐風

新屋裝修

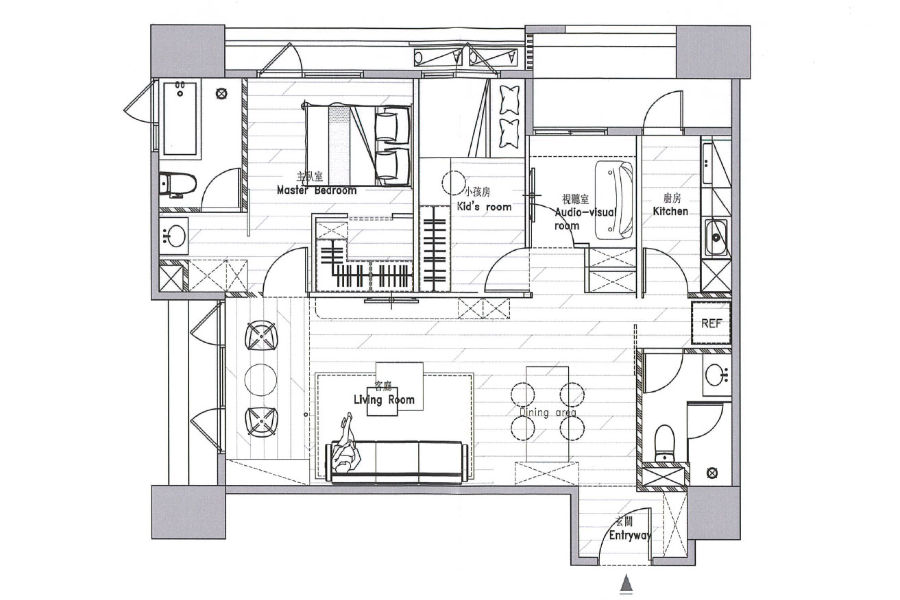
3房2廳

綠建材系統傢俱、藝術塗料、色漆、玻璃滑門、六角磚、蜂巢簾、木地板、造型木作

葉芳松設計師以簡約溫潤的調性,摒除繁複的裝飾語彙,讓物品、氛圍、生活方式都依照著屋主自身獨有的美學引力及生活哲學,隨性而自在地運行著。空間格局經由微調重塑,擴大公領域的範疇,揉入陽光、雨聲、綠意等自然因子,生長出擁有自我意識和風格的暖心家宅。

巧寓編輯精選 本月精選

本案新屋裝潢,在廣袤的天際線之下,縱情於蔚藍碧空,看雲捲雲舒,有著不見盡頭的詩意遠方,而每次的航程與邂逅,都是一次新的視野開拓。身為空服員以及曾於國外留學的屋主,穿越無數國境,領略不同文化風采,這些豐厚的經歷薈萃成他們獨特的審美品味與生活方式。屋主期望有一處舒心安適的居所,能紓解長時間飛行帶來的時差和疲勞,同時乘載兩人浪漫的親密記憶,譜寫從相戀到未來步入婚姻的持續敘事。

設計概念

美國作家凱特·道格拉斯·維京於《New Chronicles of Rebecca》一書寫道:「遠行回來後的變化,有一種神奇的魔力。」那便是旅行所帶來的內在變化,看待生活的新視角,葉松芳設計師以簡約溫潤的北歐風調性,摒除繁複的裝飾語彙,讓物品、氛圍、生活方式都依照著屋主自身獨有的美學引力及生活哲學,隨性而自在地運行著。空間格局經由微調重塑,擴大公領域的範疇,揉入陽光、雨聲、綠意等自然因子,生長出擁有自我意識和風格的暖心家宅。

玄關設計

玄關對於身為空服員的屋主來說,是返家後放鬆身心、療癒復原的轉圜地帶,亦是出門前沉澱心情、迎接挑戰的起點。甫進門,便是舒心敞亮的玄關來溫柔相迎,方寸之地以素雅的木質和灰韻,洗淨心靈的繁塊雜色,暖意盈盈的光氛,彷彿將緊湊的日程從時間中抽離出來,書寫下安頓精神的棲息地。

懸浮的櫃體整併了鞋櫃、置物平台與儀容鏡;延伸至立面的清水模景序,則消隱了電箱的存在感,從機能乃至居住者的心靈皆被細緻照料著。跳脫沉靜的感受,六角磚地坪不規則的幾何圖形,趣味中帶點隨性自由,如同飛往不同國家歷經的小小冒險般,拼織起他們獨特的生活體驗。

客餐廳設計

倘若空間是一首沾染生活色彩的樂曲,那麼餐廳區便是經過玄關和緩的 Intro 後,一段悠揚恣意的Pre-Chorus。簡約澄淨的場域,搭配實用雅致的餐邊櫃,讓步伐得以放緩,日常的食飲也能被輕盈承托。空間一如音韻輕柔地流淌,伴隨著細膩的故事娓娓道來,讓每一幀日常片段都值得細細品味、咀嚼。

深諳於自由的構建,夜色闌珊之際,留白的牆面投映著嬈嬈燈影,酒吧的鬆弛感油然而生,在這裡與伴侶、好友淺啜酒品,輕鬆閒聊,完美掬住了這份乃自生活的歡笑餘溫。

汲取鍋煮奶茶的醇厚感,客廳以淡雅的藝術塗料鋪陳,富含生活況味之餘,卻也氣質不凡,從清晨到日落都籠罩著素淨之美,優雅不羈的生活理念也在此盡情蔓延。格局經過微調後,設計師改變客浴入口的方向, 讓畸零段落成為擺放冰箱的容身之處,把日常機能融入流暢寫意的動線之中。

對設計師來說,每一寸空間都是時間的記憶,每一道光影都是情感的凝望,當斷捨離成為一種生活信念,就毋須過多的櫃體,而是騰出空間收納美好時光、放大感知體驗,把日常咖啡的香氣襯托地更加濃郁,擴展出功能之上的意義。

因此,公領域僅僅以一L型儲物櫃,收攏掃具電器、生活雜物等,並利用隱藏門設計,延伸出簡潔俐落、一體成形的寬幅廓面,如同猶如清澈無雜質的水面,生動倒映著一切故事的軌跡。

沙發背牆透過半腰設計,攤開溫馨暖融的家景,一旁兼容辦公區的休閒角落,設置了咖啡桌,以及擺放公仔、音響、香氛的木質櫃,輕鬆無拘的氛圍,一掃工作時的煩悶壓力,讓屋主在家也能享有咖啡廳般的儀式感。

視聽間設計

過道區巧用雙向手法,將冗餘的段落活化利用,使擺置咖啡機的餐邊櫃、視聽間的是收納櫃,化成空間的一體兩面。

「設計」作為一種創設情境,從材質的挑選、用色的鋪陳,去組織居者的秉性、愛好,揣摩他們的日常生活和彼此的相處方式,就這麼一點一滴勾勒出空間的面貌與精神。

憑藉對男主人內心世界的深刻解讀、對電影、動畫、遊戲中審美價值的抽絲剝繭,設計師以灰調木質、個性黑,悉心構築男主人的獨屬空間,賦予隔離外界異音的絕對寧靜。

主臥房設計

跟隨航班時刻表不斷變化的生活作息,在空服員屋主的眼裡,臥房的核心要義,棲居的不只是身還有心,那是長途飛行後的休憩之所,亦是生活純粹本質的體現。主臥延續公區柔潤淺淡的奶茶色,接續寫下舒適無壓的生活溫度,床頭以沉穩的胡桃木質,與暈黃的光影交匯變幻,為女主人營造出放鬆自在的閱讀情境。

順著原先洗手台在衛浴之外的特殊格局,設計師將通往衛浴的過渡地帶,恰如其分地化為日常備品的儲納區,並特地於將面向入口的一櫃轉向,打造出展示公仔的陳列櫃,以精美的端景承接入門視野。

為實現擁有更衣室的夢想,設計師另造實牆構築獨立空間,並以玻璃滑門劃分界線,內部機能規劃以開放式為主,局部增設抽屜櫃與格櫃,滿足男女主各自衣物收納的需求。

小孩房設計

次臥房作為空間樂曲的Outro,鏈結當下與未來,設計師把空間化成了說故事的媒介,以彈性運用的概念,預先規劃衣櫃、書櫃及書桌,以及可當休閒臥榻和床架的架高木地板,無論是繼續維持浪漫甜蜜的兩人世界,還是未來蛻變成溫馨的三口之家,空間皆包容著人生旅程中各式雋美的章節。

林口室內設計

新北市林口區室內設計/亞昕昕聯心/25坪/3房2廳