鄉村風
新屋裝修
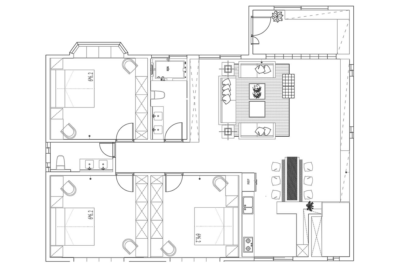
3房2廳
板岩文化石、花磚、玻璃拉門、木紋磚、實木皮、木作天花板、人造大理石檯面、鄉村風門板、崁燈、油漆、木地板、進口窗簾、歐德系統家具、優渥實木家具
以夫妻倆喜愛的自然鄉村風做為基調,揉入典雅系統櫃引出古典氣息,運用粗獷板岩文化石呈現獨特鄉村風味,同時將壁面飾以淡奶油黃色調,使女主人精心繪製的國畫脫穎而出,實現優雅慢活生活。
鄉村風
新屋裝修
3房2廳
板岩文化石、花磚、玻璃拉門、木紋磚、實木皮、木作天花板、人造大理石檯面、鄉村風門板、崁燈、油漆、木地板、進口窗簾、歐德系統家具、優渥實木家具
以夫妻倆喜愛的自然鄉村風做為基調,揉入典雅系統櫃引出古典氣息,運用粗獷板岩文化石呈現獨特鄉村風味,同時將壁面飾以淡奶油黃色調,使女主人精心繪製的國畫脫穎而出,實現優雅慢活生活。
顧及女主人的作畫雅興,引述藝廊概念,調整電視櫃高度讓渡出寬敞面積,加上畫軌與投射燈配置,使牆面兼具展示用途;亦於沙發背牆移植經典歐美鄉村風設計,砌築開放式格櫃擺設書籍與從國外攜回的珍貴紀念飾品。
客廳設計:
豎立玻璃滑門形成內外分野,穿引清透日光、新鮮空氣與自然景色,創造開闊明朗的起居環境,透過格狀語彙串起窗框與九宮格天花造型,使全室連成一氣、相互輝映。
同步採以板岩文化石築起電視牆,透過天然起伏紋理,為鄉村風挹注自然原野味道,並悉心佐以碎花布沙發柔化硬派粗獷調性,平衡空間冷硬氣息,呈現不落窠臼的風格品味。
在淡奶油黃漆面映襯下,加深純白櫃體輪廓線條,大幅提升空間明亮度與穿透性,敞朗舒心氛圍旋即透散。
客廳以九宮格造型串起公共空間的木質與格屏元素外,藉由醇厚櫻桃木色襯托古典吊燈,增添整體典雅懷舊韻味
玄關設計:
藍天白雲相映青翠草坪,周圍盡是蓊鬱樹林相伴,被自然圍繞的住宅正是黎先生的夢想退休宅。敞開門扉,溫潤木地坪襯著胡桃柚木天花,鋪展一室天然氣息,渲染明亮舒心氛圍。
沿著窗景將鄉村系統板材砌成一道鞋櫃臥榻,讓屋主臨窗靜觀幽幽綠景,接續將高度微幅抬升,並覆以帶有雲霧紋理的大理石板材當作背景,使古典裝飾線條立顯鮮明,佐上畫作與飾品即是一幅高雅精緻的迎賓端景。
在家具配置上主要透過系統傢俱量身訂製符合實際需求的配置,如同玄關及客廳將鞋櫃、電視櫃的量體扁平化,退讓出寬敞壁面妝點畫作。
廚房設計:
針對熱愛料理的夫妻倆,導入開放式設計使公共空間相互連貫,並擷取二字型廚房配置手法,築起一座寬敞電器櫃收整小家電與烤箱設備,接續拉出一道 L 型吧台並於上櫃揉入玻璃櫥窗與開放層架,相佐復古花磚烘托愜意烹飪情境。
同步設置流明天花創造宛若天光灑落的意象,並以霧玻璃取代常見壓克力板,營造更為細膩淨透的視感;倚坐在此,即能一邊啜飲咖啡與家人細說日常,亦或靜靜遙望後庭院蒼翠景致,在雲霞相伴下感受時光流逝。
廚房燈光設計以流明天花形塑天光灑落意象,創造簡潔均亮且自然舒適的作業環境。
廚房收納規劃以電器櫃結合玻璃櫥窗與層架,使珍藏的杯盤器皿也能優雅呈現。
主臥設計:
串連私領域的走廊,將輕柔奶油黃色調蔓延並增設畫軌,一方面與客廳形成連貫,另則使國畫的濃淡墨色、細膩筆法為之凸顯,成為一道洋溢濃郁藝術氣息的畫廊過道。
慢步入室,將主牆以象徵藍天的灰藍色調大面積揮灑,在溫暖樸實間注入一絲自然明亮氣息,並依循廣角窗輪廓以鄉村風板材框構窗邊臥榻,飾以同色系碎花布簾與座墊渲染一致舒心視感。
轉至旁側,沿著凹槽深度將櫃體消融於壁面,運用置頂衣櫃滿足屋主大量衣物收納需求,並挹注純白色調消弱量體厚重感,立面則經由精緻典雅線框增添空間優雅質韻。
接續以大理石板材界分梳妝場域,以半開放上櫃創造視野穿透性,用以擺放相片及蒐藏飾品,隨心轉換框景陳設,使寢間風景具備多元面貌;並根據男女主人習慣,細心揀選具 USB 孔的進口插座蓋板,透過洗鍊外型與檯面完美嵌合。
臥室透過系統傢俱的高度彈性,使窗邊臥榻兼具抽屜收納功能,並根據習慣規劃整面衣櫃收整衣物,讓收納與空間融合為一。
女兒房設計:
自然清新的草綠色調,散發出專屬姊妹倆的青春活力氣息,搭配窗邊臥榻的經典粉嫩碎花布料,帶出鄉村風的活潑野趣氛圍。
貼心顧及使用順手度,於各臥房搭配優渥實木的格柵邊几,即使坐臥在床鋪也能隨手擱置手機、書籍或電腦,並佐上柚木橫杆吊衣架增添視野穿透度,使美感機能並俱。
此外,基於女主人對於藝術的熱忱,挑選歐德獨家引進的畢卡索抱枕作為空間點綴,不論擺放在臥榻亦或沙發均能成為一抹點睛之筆,增添整體美學品味。
規格
鄉村風
新屋裝修
3房2廳
61 坪
352 萬
4位大人
苗栗縣
板岩文化石、花磚、玻璃拉門、木紋磚、實木皮、木作天花板、人造大理石檯面、鄉村風門板、崁燈、油漆、木地板、進口窗簾、歐德系統家具、優渥實木家具
說明
以夫妻倆喜愛的自然鄉村風做為基調,揉入典雅系統櫃引出古典氣息,運用粗獷板岩文化石呈現獨特鄉村風味,同時將壁面飾以淡奶油黃色調,使女主人精心繪製的國畫脫穎而出,實現優雅慢活生活。
重視健康無毒的生活環境。
夫妻愛好自然鄉村風與典雅大氣氛圍。
女主人有繪製國畫興趣,希望能妥善擺設畫作。
擁有大量書籍與旅遊紀念品,需有合適擺放空間。
30秒立即預約
性別
Line ID
詳細需求內容
分享