分享
曾俊傑
現代風
老屋翻新
3房2廳
花磚、乳膠漆、超耐磨地板、鐵件、玻璃、木作裝潢、窗簾、歐德系統櫃
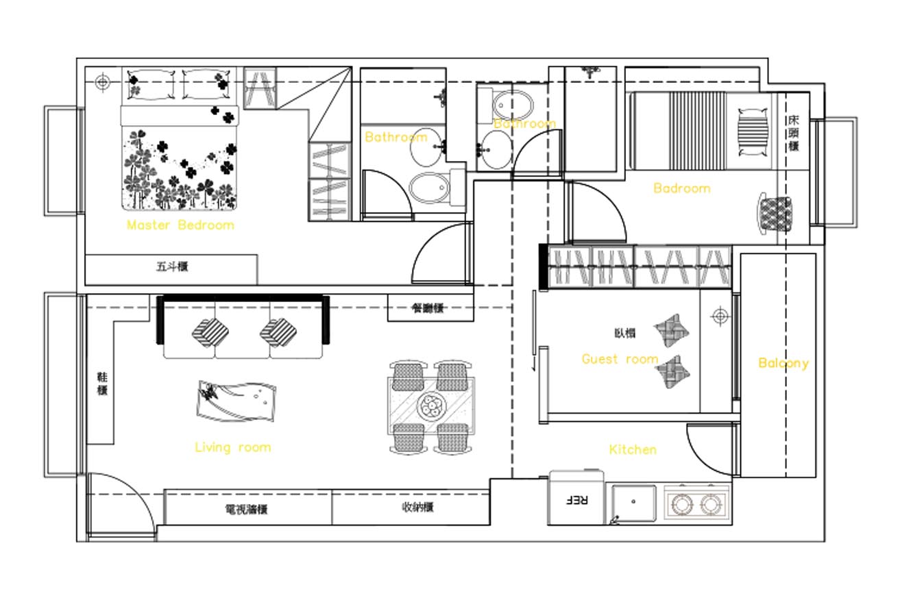
屋齡25年,原始屋況不佳,有著壁癌、收納空間不足、採光不足等困擾,由曾俊傑設計師操刀,解決了壁癌問題,改善了收納與採光不足的困擾,老屋回春賦予新的生命。
本案位於新北市的舊屋翻新規劃,屋齡25年,原始屋況不佳,有著壁癌、收納空間不足、採光不足等困擾,由曾俊傑設計師操刀,解決了壁癌問題,改善了收納與採光不足的困擾,搭配著現代風格,將老屋回春賦予新的生命。
一入門玄關落塵區選用特色十足的花磚,除了方便打掃外更界定裡外區域,L型的鞋櫃滿足全家人收納的需求,及腰的高度方便進門後放置手中物品,也設計了座凳,讓穿鞋更輕鬆,並將鞋櫃後方懸空,規劃出掃地機器人的家,牆面利用灰色調搭配木色鞋櫃,調整窗戶大小,引入自然光線。
廚房拉門與和室拉門使用鐵件玻璃座空間區隔,也隔絕廚房油煙,採用透光但不透視的玻璃,讓後方陽台的採光從和室、廚房引入餐廳空間,改善了採光的不足。
和室架高空間,增加了底部的收納功能,將牆面改為櫃體,增加收納機能,而和室靠窗處設計成檯面,成為閱讀辦公空間,也具備客房功能,一個空間多面向利用。
主臥空間設計靠牆衣櫃、床尾五斗櫃,牆面跳淺灰色,打造輕鬆舒眠氛圍。
解決次臥牆面壁癌問題,在有限的空間安排了書桌,並運用側方的畸零空間設計出收納櫃體。
日光現代風|舒活退休宅
現代風|新屋裝修|3房2廳
日式無印風|為老屋注入新生命
日式無印|老屋翻新|4房2廳
規格
20 坪
195 萬
2位大人、1位小孩
新北市
壁癌,收納不足,光線不足
說明
Facebook
Twitter
LINE
複製連結
30秒立即預約
性別
Line ID
詳細需求內容