簡約風
新屋裝修
3房2廳
綠建材系統傢俱、長虹玻璃、鋁框拉門、燈帶、木作造型、鐵件、磁磚、馬賽克磚、鏡面
本案新成屋設計,平時為屋主一人所居的退休宅,亦是在異國成家立業的兒女回臺暫居的歸巢,江柄融設計師將空間以講究互動、交流的美式家庭生活為基礎,揉入全齡化的概念,藉著軒敞開闊的公領域、多元化的社交場景,讓洋溢著情感與記憶的家宅故事,有著一人獨居時的清寧自在、有著與子女們的歡聚時光、有著和孫子們的溫馨互動,一幕幕溫暖多樣的生活圖景皆悉數呈現。
簡約風
新屋裝修
3房2廳
綠建材系統傢俱、長虹玻璃、鋁框拉門、燈帶、木作造型、鐵件、磁磚、馬賽克磚、鏡面
本案新成屋設計,平時為屋主一人所居的退休宅,亦是在異國成家立業的兒女回臺暫居的歸巢,江柄融設計師將空間以講究互動、交流的美式家庭生活為基礎,揉入全齡化的概念,藉著軒敞開闊的公領域、多元化的社交場景,讓洋溢著情感與記憶的家宅故事,有著一人獨居時的清寧自在、有著與子女們的歡聚時光、有著和孫子們的溫馨互動,一幕幕溫暖多樣的生活圖景皆悉數呈現。
設計概念
數學家阿基米德曾言:「給我一個支點,我將舉起整個地球。」對設計師來說,「家」即是柔和卻有力的溫暖支點,足以將生活托舉、將情感凝聚。承載著圓滿與團聚的美好寓意,全室環繞著「圓」而生,開闊似無邊的公領域,以流暢自如的環形動線,解放了傳統區域機能的界限,將客廳、餐廚、休閒區及客房巧妙融合一體,也觸動了家人間一圈圈的情感漣漪。而簡約無飾的設計語言,使空間自由地展現豐富的生活紋理,帶來源自心底的溫實感受。
玄關設計
推開家門的瞬間,人就會放鬆柔軟下來,便是玄關存在的意義。玄關處從鞋櫃生長出來的一彎弧形坐凳,與靜謐柔和的灰系落塵,輕輕撢去了疲憊與喧囂,溫柔地迎接歸家的旅人。
一方境地比照美式生活注重機能的概念,透過簡練的吊衣桿及穿衣鏡引領日常的出入動線,順理出流暢的空間邏輯。立鏡與地坪落差交界巧以不銹鋼邊條修飾,清晰框塑出內外分野。
澄淨留白的牆景設有六公尺長的畫軌,貫穿公領域的始末,屋主精心挑選的藝術掛畫在其中錯落有度,目光所及皆是文化內涵帶給人的纖雅感受,一方面消弭了配電箱突兀的存在,另一方面則讓嚮往藝術的心在此常駐。
客廳設計
在異國打拼、成家立業的兒女,每一次回臺探訪,都是對家的深情回望,對親人的深切思念,踏進家門只為那份如初的溫暖。一家人聚在一起,圍坐在餐桌旁分享國外生活的點滴,偶爾品些小酒或耽坐茶席,孫子們則在家中自由地嬉戲玩耍,這些簡單幸福的時光碎片都在這個空間裡,串織成人與人之間深刻的情感聯繫。
簡約的色調、俐落的線條、模糊的邊界,不拘形式也不被定義,由暖白與木質調和的底蘊,如水溫潤,自在流淌。設計師跳脫常規制式的格局定勢,降低區域的隔閡,極致放大公領域活動範圍,並妙用優雅婉轉的「圓」連袂天地壁,帶出迂迴流通的圓融感受,把屋主與家人細膩的情感,透過純粹簡潔的畫面傳遞。
對設計師而言,能與人互動的空間,才是真正有價值的空間。以鏤空鐵件構築的電視牆,由上而下將場域溫柔對分,不僅在平面佈局中呈現立體構圖,也定錨了場域的軸心,當孩子繞轉著追逐奔跑,所形成動態的圓,便構成家的生命力所在,圓滿了一種超越形式的情感共鳴。
餐廳廚房設計
繞過電視牆後,便是寬敞舒適的美式餐廚區,恰如精彩的轉場,訴說著隨性而自由的慢活步調,而純白的層架上擺放著綠植盆栽,捎來清新鮮活的氣息,為空間挹注一抹自然之韻。廚具一隅高起的平台,增添了酒吧機能,輾轉在黑與白的色調之間,幻化出輕鬆愜意的微醺氛圍。
Snack Pantry
重塑後的格局,除了為廚房拓增電器櫃收納,更透過玻璃滑門將餐廳後方難以利用的畸零一角,改造成西方家庭必備的Snack Pantry,透過化零為整的精密構思,植入紅酒櫃、零食區、擺放咖啡機的餐邊櫃,讓小巧的空間兼容茶水間和調酒室等複合機能。
彈性休閒多功能室
正如休閒區的玻璃門上的圓,形成如嵌入鏡框中的景色,透散著瑩瑩如月的光氛,亦昭示著家恆久的溫暖、團圓的意義。設計師對內打通全局,攤開空間尺幅,迎來敞闊舒心的一方悠境,對外則以虛實併合的立面、高低錯落的地坪,隱喻界分和室與客房的機能屬性。
和室利用架高木地板,將豐富的收納化為一方疊蓆,並配置升降桌,多維呈現社交生活場景的可能;而兩域之間也以彈性折門,締結空間的交流與聚合。
客房作為兒子回臺暫居時的房間,諸如折疊式的工作桌、臥榻床及架高木地板側邊的抽屜收納,以及把結構大柱轉成床頭機能等,隨著盈盈暖光流入,規整的細節與人文的溫度俱存,將休憩領地溫馨的歸屬感逐一刻繪。
長輩房設計
由光景、雅白編織的柔潤基底,輔以簡潔無痕的構面,呈現出渾然統一的恬適感。藏於隱藏門之後的次臥房,主要為屋主平時所居,考量日常使用的便利性與個人隱私,設計師以客浴為軸,採用穿引內外的雙動線鏈結公領域與次臥。
白潤的光底,是過濾熱鬧社交後,一塊忠於自我的靜謐角落,天花橫梁在輕薄微彎的邊緣勾勒下,與光帶發散的和緩詩意,共譜優美曲線。順著圓角而成的置頂衣櫃,循著低緩的音階律動,構織起上掀式梳妝台和床邊櫃。
女兒房設計
蘸染自然光的主臥,讓歷經長時間飛行、千里遠渡回臺的女兒一家得以全然放鬆,置身愜意、飄悠又沉靜的氛圍之中,悠白的色系使連排而立的床尾衣櫃都顯得輕盈。此外,空間除了具備完善的起居機能, 更於衛浴採用無落差地坪,賦予孩子自如活動的安全性,實現全齡化的概念。
顧及外國女婿高大的身形,以及一家人使用上的便利性,主臥衛浴微調格局擴大尺幅,創造出寬適舒放的生活場域,同時以淡雅的灰質磁磚、密密鋪排的馬賽克磚平添細節,昇華空間的豐富層次。
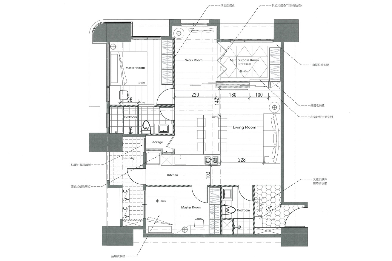
案件位於新北市板橋區,3房2廳26坪格局,以多變格局為最大特色。
規格
簡約風
新屋裝修
3房2廳
26 坪
267 萬
1位大人
新北市
綠建材系統傢俱、長虹玻璃、鋁框拉門、燈帶、木作造型、鐵件、磁磚、馬賽克磚、鏡面
說明
本案新成屋設計,平時為屋主一人所居的退休宅,亦是在異國成家立業的兒女回臺暫居的歸巢,江柄融設計師將空間以講究互動、交流的美式家庭生活為基礎,揉入全齡化的概念,藉著軒敞開闊的公領域、多元化的社交場景,讓洋溢著情感與記憶的家宅故事,有著一人獨居時的清寧自在、有著與子女們的歡聚時光、有著和孫子們的溫馨互動,一幕幕溫暖多樣的生活圖景皆悉數呈現。
30秒立即預約
性別
Line ID
詳細需求內容
分享