巧寓室內設計作品 | 自然北歐旅遊宅|登山者的溫馨居所|龜山室內設計 - 巧寓舍計|五成尾款

create預約室內設計 chat_bubble線上客服
0WEBP.webp

自然北歐旅遊宅|登山者的溫馨居所|龜山室內設計


北歐風

新屋裝修

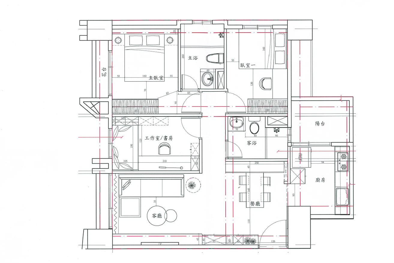
3房2廳

本案新成屋裝潢,以「旅遊宅」為主題,結合北歐風的設計手法,為一位熱愛旅遊和登山的業主,打造了一個溫馨且實用的居住空間。整體空間充滿自然氣息,讓人仿佛置身於大自然的懷抱。

精選 為你推薦 巧寓編輯精選 本月精選

本案新成屋裝潢,以「旅遊宅」為主題,結合北歐風的設計手法,為一位熱愛旅遊和登山的業主,打造了一個溫馨且實用的居住空間。整體空間充滿自然氣息,讓人仿佛置身於大自然的懷抱。

客廳設計

簡潔而溫暖,大面積的落地窗引入充足的自然光,侯曉萍設計師,採用了米白色與淺木色為主色調,柔和的光線使整個空間顯得明亮通透。淺色布質沙發搭配設計感茶几,營造出一個放鬆舒適的休憩區域。窗邊的綠植和小巧的裝飾品,增添了自然氣息與生活情趣,而電視牆的仿清水模板材則成為公領域的視覺焦點。

餐廳設計

簡約實用,適合招待三五好友。木質餐桌和椅子給人一種親切自然的感覺。簡約的吊燈設計,溫暖柔和的燈光,營造出溫馨的用餐氛圍。餐廳區域設有一整排收納櫃,充分利用垂直空間,並在下方設有大型儲物空間,讓收納變得井然有序。設計師巧妙地將電箱隱藏在滑軌五金與洞洞板結合的櫃體中,保持牆面整潔美觀。此外,櫃體旁設有掃地機器人的專屬收納櫃,實用且整潔。

書房設計

書房是業主的私人空間,設計師充分考慮了實用性與舒適度。以系統板材設計書桌與收納櫃,提供了充足的工作與儲物空間,牆上的開放式書架方便業主隨時拿取需要的旅遊書籍。窗邊設有一個舒適的臥榻,既可作為休息角落,也能在陽光明媚的午後享受閱讀的時光。書房內特設的登山背包收納區,方便業主存放並展示登山裝備,充分體現設計的貼心與實用。

臥室設計

臥室設計延續了簡約自然的風格,柔和的色調讓人感到放鬆與愜意。床頭背景牆以簡約色漆裝飾架,擺放幾本旅遊書籍和裝飾畫,增添了個性化元素。半透光的窗簾在保證隱私的同時,讓自然光柔和滲透,營造出溫暖的睡眠環境。

A7重劃區桃園龜山室內設計

案件位於桃園市龜山區,3房2廳23坪格局,通過自然色調和精心設計的細節,為熱愛登山的業主打造了一個溫馨、實用且充滿生活氣息的家。在這裡,無論是享受家庭時光還是規劃下一次旅程,都能找到心靈的歸屬。

桃園市龜山區室內設計/富宇天匯/23坪/3房2廳